Den här nyheten publicerades 16 maj 2024
och är kanske inte aktuell längre.
Ny förskola i Eriksmåla byggs
I juni 2025 är Eriksmålas nya förskola klar att användas. Priset blir 10,3 miljoner kronor och byggnationen står CR Ottosson Bygg AB för.
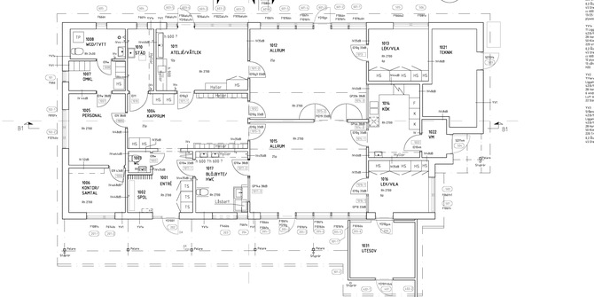
Den 267 kvadratmeter stora förskolan fördelat på ett plan kommer ha kapacitet att ta emot upp till 21 barn. Planen för förskolan Solgläntans nuvarande byggnad är att den ska avvecklas genom medborgardialog och bjudas ut till försäljning. Förutom den gamla huvudbyggnaden ingår även en gymnastiksal.
Nya Solgläntan kommer ha sin placering bakom den gamla lokalen och den befintliga stenmuren är en del av avgränsningen. Den nya förskolan består av två allrum, kök, en ateljé, kapprum, personalutrymme, ett kontorsrum, två rum för lek/vila, teknikrum samt tre skötrum och wc. Utvändigt är byggnaden utrustad med solceller på plåttaket. Fasaden är klädd med James Hardie-panel i fibercement. Lokalen är utrustad med inbrottslarm och vidarekopplat brandlarm.
Vidare byggs ett nytt miljöhus med möjlighet till sortering samt en utematplats med en liten scen.

